
Langstraat , 5801 AC Venray
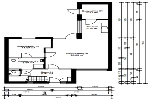
Deze ruime levensloopbestendige woning bevindt zich aan de Langstraat te Venray. Binnen enkele minuten lopen sta je midden in het gezellige centrum van Venray met alle voorzieningen. Daarnaast bevindt je je binnen 3 tot 5 minuten rijden. Deze woning heeft een slaapkamer en badkamer op de begane grond, berging, een tuin met vrije achterom en bijbehorende (verplichte) parkeerplaats voor € 35,- per maand. Verder bevindt zich op de 1e verdieping ook nog een fijne ruime slaapkamer. Wonen aan de Langstraat 24 is ruim en modern wonen in het centrum van Venray met vrijwel alle voorzieningen op loopafstand.
Huurprijs p.m. :
Oppervlakte :
Kamers :
Badkamers :
Slaapkamers :
€ 1.120,00
95 m2
3
1
2
Woningtype :
Interieur :
Beschikbaar vanaf :
Beschikbaar tot :
Huisgenoot :
Huurwoning
n/a
31-10-2025
n/a
0
Badkamer :
Toilet :
Keuken :
Woonkamer :
Internet beschikbaar :
Privé
Privé
Privé
Privé
Ja
Huisdieren :
Roken :
Parkeerplaats :
Fietsenstalling :
Toegestaan
Toegestaan
Niet beschikbaar
Niet beschikbaar