
Noord Brabantlaan , 5657 GA Eindhoven
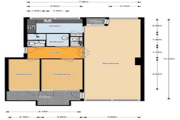
Indeling: Ingang met brievenbussen en intercominstallatie. Via de centrale hal waar ook inpandig de berging te bereiken is, komt u bij het trappenhuis. Dit trappenhuis brengt u na 2 verdiepingen bij het appartement. De inpandige berging met een grootte van ±11 m² (3,87m*2,80m) is voorzien van een smal raam, elektra en genoeg stallingsruimte voor één of meer fietsen. Hal met betegelde toilet met fonteintje, gehele appartement voorzien van een nette laminaatvloer en geschilderde wanden, groepenkast met 4 groepen en een aardlekschakelaar, toegang tot 2 slaapkamers van respectievelijk ±13 m² en ±10 m² met inbouwkasten en toegang tot het balkon, keuken voorzien van diverse boven- en onderkasten, vaatwasser, 4- pits gaskookplaat, koelkast, vriezer, afzuigunit, enkele spoelbak met éénhendelmengkraan en aansluitingen voor de wasmachine en droger. Badkamer die voorzien is van een douche en badkamermeubel met wasbak. Het appartement heeft een heerlijk grote doorzonwoonkamer van ±36m² (9,24*3,90) met veel lichtinval, toegang tot het andere balkon dat op de noordwest kant ligt en een uniek uitzicht op het Evoluon. Achter het appartementencomplex bevind zich een parkeerterrein waar u gratis uw auto kunt parkeren.
Huurprijs p.m. :
Oppervlakte :
Kamers :
Badkamers :
Slaapkamers :
€ 1.800,00
90 m2
3
1
2
Woningtype :
Interieur :
Beschikbaar vanaf :
Beschikbaar tot :
Huisgenoot :
Appartement
n/a
01-11-2025
n/a
0
Badkamer :
Toilet :
Keuken :
Woonkamer :
Internet beschikbaar :
Privé
Privé
Privé
Privé
Ja
Huisdieren :
Roken :
Parkeerplaats :
Fietsenstalling :
Toegestaan
Toegestaan
Niet beschikbaar
Niet beschikbaar