header-logo2.png Huurflits

Huis Flying Dutchmanstraat in Rotterdam

Flying Dutchmanstraat , 3077 ZH Rotterdam

€ 1.665,00 excl. G/W/E

Beschrijving

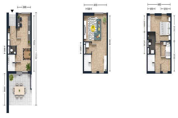
Deze prachtige eengezinswoning heeft een oppervlakte van 95 m2. De entree van deze woningen is gesitueerd aan de Flying Dutchmanstraat. Op de begane grond vind je het toilet, een trapkast, en een open keuken. De keuken is voorzien van een koelkast met vriesvak, een combi-oven, een afwasmachine en een inductiekookplaat met afzuigkap. Via de schuifpui bereik je het terras welke uitkijkt op de binnentuin van het complex. Op de 1e verdieping bevindt zich de woonkamer en de berging met de wtw-installatie en de aansluiting voor de was- en droogcombinatie. Op de 2e verdieping vind je de 2 slaapkamers, een badkamer met een inloopdouche en een wasbak.

Verstuur een bericht

Door een bericht te sturen kom je in contact met de aanbieder of makelaar van de woning.

Bericht versturen

Woningdetails

  • Huurprijs p.m. :

  • Oppervlakte :

  • Kamers :

  • Badkamers :

  • Slaapkamers :

  • € 1.665,00

  • 95 m2

  • 3

  • 1

  • 2

  • Woningtype :

  • Interieur :

  • Beschikbaar vanaf :

  • Beschikbaar tot :

  • Huisgenoot :

  • Huurwoning

  • n/a

  • 01-11-2025

  • n/a

  • 0

Faciliteiten

  • Badkamer :

  • Toilet :

  • Keuken :

  • Woonkamer :

  • Internet beschikbaar :

  • Privé

  • Privé

  • Privé

  • Privé

  • Ja

  • Huisdieren :

  • Roken :

  • Parkeerplaats :

  • Fietsenstalling :

  • Toegestaan

  • Toegestaan

  • Niet beschikbaar

  • Niet beschikbaar

Locatie