
Karstraat , 6851 HA Huissen
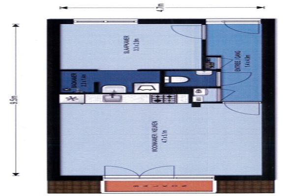
Te huur 2-kamer-appartement met balkon gelegen op het zuiden, een eigen parkeerplaats op het binnenterrein en een gezamenlijk te gebruiken fietsenstalling. Het appartement is gelegen op de 1e verdieping van een kleinschalig appartementencomplex. Indeling: -hal met meterkast -slaapkamer met laminaatvloer en doorgang naar badkamer met inloopdouche, vaste wastafel en wasmachine-aansluiting -toilet met fonteintje -stookruimte -woonkamer met balkon -open keuken (hoogglans wit) met diverse inbouwapparatuur (inductie kookplaat, combi magnetron, vaatwasser en koel-/vriescombinatie
Huurprijs p.m. :
Oppervlakte :
Kamers :
Badkamers :
Slaapkamers :
€ 925,00
44 m2
2
1
1
Woningtype :
Interieur :
Beschikbaar vanaf :
Beschikbaar tot :
Huisgenoot :
Appartement
n/a
01-11-2025
n/a
0
Badkamer :
Toilet :
Keuken :
Woonkamer :
Internet beschikbaar :
Privé
Privé
Privé
Privé
Ja
Huisdieren :
Roken :
Parkeerplaats :
Fietsenstalling :
Verboden
Verboden
Niet beschikbaar
Niet beschikbaar