header-logo2.png Huurflits

Appartement Meerring in Eindhoven

Meerring , 5658 LH Eindhoven

€ 1.717,00 excl. G/W/E

Beschrijving

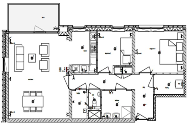
INDELING Algemeen: - Bellentableau met brievenbussen; - Trapopgang en lift naar verdiepingen; Appartement: - Entree; - Hal met voldoende ruimte voor garderobe; - Deels betegelde toiletruimte met toilet en fonteintje; - Woonkamer met toegang tot het balkon; - Nette keuken voorzien van diverse inbouwapparatuur waaronder koel-/vriescombinatie, combimagnetron, inductiekookplaat, afzuigkap en vaatwasser; - Deels betegelde badkamer voorzien van inloopdouche, toilet en wastafel; - Slaapkamer 1; - Slaapkamer 2; - Inpandige berging met aansluiting wasapparatuur; - Balkon Tevens beschikt deze woning ook over een berging op de begane grond en een parkeerplaats.

Verstuur een bericht

Door een bericht te sturen kom je in contact met de aanbieder of makelaar van de woning.

Bericht versturen

Woningdetails

  • Huurprijs p.m. :

  • Oppervlakte :

  • Kamers :

  • Badkamers :

  • Slaapkamers :

  • € 1.717,00

  • 90 m2

  • 3

  • 1

  • 2

  • Woningtype :

  • Interieur :

  • Beschikbaar vanaf :

  • Beschikbaar tot :

  • Huisgenoot :

  • Appartement

  • n/a

  • 01-05-2026

  • n/a

  • 0

Faciliteiten

  • Badkamer :

  • Toilet :

  • Keuken :

  • Woonkamer :

  • Internet beschikbaar :

  • Privé

  • Privé

  • Privé

  • Privé

  • Ja

  • Huisdieren :

  • Roken :

  • Parkeerplaats :

  • Fietsenstalling :

  • Verboden

  • Toegestaan

  • Niet beschikbaar

  • Niet beschikbaar

Locatie