Huurflits
Bulgerstein , Amsterdam
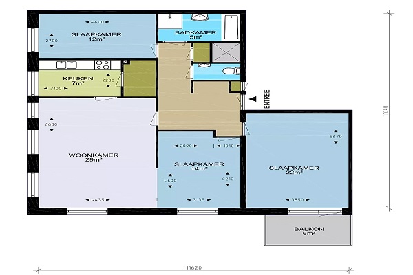
4-kamer appartement met een oppervlakte van 108 m². De lichte woonkamer van circa 20 m² vormt het hart van de woning en biedt toegang tot het eerste balkon – ideaal voor een in de ochtend of een frisse avondbries. De open keuken is uitgerust met een inductiekookplaat, koel-vriescombinatie, elektrische oven, spoelbak en afzuigkap. Vanuit de hal bereik je de drie slaapkamers, waarvan de grootste directe toegang heeft tot het tweede balkon. De badkamer is modern ingericht met een inloopdouche, ligbad en wastafel. Het toilet bevindt zich in een aparte ruimte. Praktisch is ook de inpandige berging met aansluiting voor een wasmachine en/of droger – handig én uit het zicht.
Huurprijs p.m. :
Oppervlakte :
Kamers :
Badkamers :
Slaapkamers :
€ 2.132,00
108 m2
4
1
3
Woningtype :
Interieur :
Beschikbaar vanaf :
Beschikbaar tot :
Huisgenoot :
Appartement
n/a
02-01-2026
n/a
0
Badkamer :
Toilet :
Keuken :
Woonkamer :
Internet beschikbaar :
Privé
Privé
Privé
Privé
Ja
Huisdieren :
Roken :
Parkeerplaats :
Fietsenstalling :
Toegestaan
Toegestaan
Niet beschikbaar
Niet beschikbaar