header-logo2.png Huurflits

Appartement Hogewerf in Amsterdam

Hogewerf , Amsterdam

€ 1.807,00 excl. G/W/E

Beschrijving

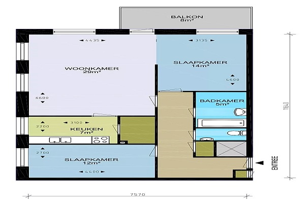
3-kamer appartement met een oppervlakte van 87 m2. Het appartement beschikt over een lichte woonkamer van 29 m2 met toegang tot het balkon. Een van de slaapkamers tref je en suite aan de woonkamer. Deze slaapkamer is 14 m2 en ook prima in gebruik te nemen als werk- en/of studeerkamer. De tweede slaapkamer heeft een oppervlakte van 12 m2. De gesloten keuken is uitgerust met een gaskookplaat, elektrische oven, spoelbak en afzuigkap. De badkamer is voorzien van een ligbad, douche, designradiator en een wastafel. Het toilet tref je in een aparte ruimte. Praktisch is de inpandige berging welke is voorzien van een aansluiting voor jouw wasmachine en/of droger!

Verstuur een bericht

Door een bericht te sturen kom je in contact met de aanbieder of makelaar van de woning.

Bericht versturen

Woningdetails

  • Huurprijs p.m. :

  • Oppervlakte :

  • Kamers :

  • Badkamers :

  • Slaapkamers :

  • € 1.807,00

  • 87 m2

  • 3

  • 1

  • 2

  • Woningtype :

  • Interieur :

  • Beschikbaar vanaf :

  • Beschikbaar tot :

  • Huisgenoot :

  • Appartement

  • n/a

  • 02-01-2026

  • n/a

  • 0

Faciliteiten

  • Badkamer :

  • Toilet :

  • Keuken :

  • Woonkamer :

  • Internet beschikbaar :

  • Privé

  • Privé

  • Privé

  • Privé

  • Ja

  • Huisdieren :

  • Roken :

  • Parkeerplaats :

  • Fietsenstalling :

  • Toegestaan

  • Toegestaan

  • Niet beschikbaar

  • Niet beschikbaar

Locatie