header-logo2.png Huurflits

Appartement Markt in Eindhoven

Markt , 5611 EC Eindhoven

€ 2.150,00 excl. G/W/E

Beschrijving

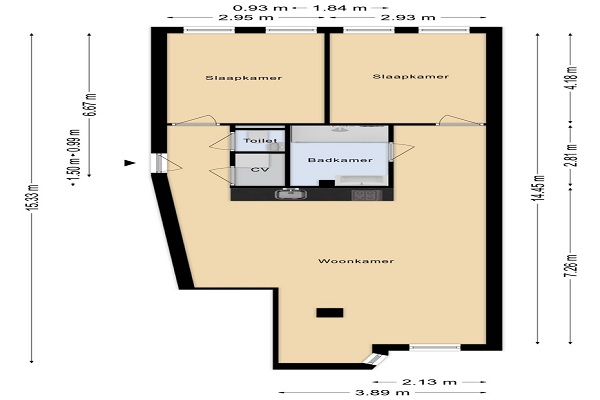
Indeling Bij binnenkomst kom je in de royale woonkamer die zich uitstrekt over de gehele voorzijde van de woning. Met een breedte van bijna 4 meter en een diepte van ruim 7 meter biedt deze ruimte volop mogelijkheden voor een gezellige zithoek en een ruime eethoek. Dankzij de schuine gevel en de grote raampartijen aan de voorzijde geniet je hier van veel lichtinval en een speelse indeling. De keuken is centraal in de woonkamer gesitueerd, direct naast de entree en tegenover de badkamer. Dit maakt het een praktische en functionele plek, waarbij koken en wonen op een prettige manier samenkomen. Het appartement beschikt over twee slaapkamers, beide gelegen aan de achterzijde van de woning: - De linker slaapkamer meet ca. 2,95 m breed en 4,18 m diep. - De rechter slaapkamer is vrijwel even groot met ca. 2,93 m breed en 4,18 m diep. Beide kamers zijn toegankelijk vanuit de woonkamer en bieden rust en privacy. De badkamer is centraal gelegen in de woning, direct bereikbaar vanuit de woonkamer en naast de slaapkamers. Deze ruimte is praktisch ingedeeld met onder andere ruimte voor een wastafel en douche. Naast de badkamer bevindt zich een apart toilet, wat extra comfort biedt. De CV-/technische ruimte grenst aan het toilet en is netjes weggewerkt, maar toch eenvoudig bereikbaar. 2 werkende collega's toegestaan

Verstuur een bericht

Door een bericht te sturen kom je in contact met de aanbieder of makelaar van de woning.

Bericht versturen

Woningdetails

  • Huurprijs p.m. :

  • Oppervlakte :

  • Kamers :

  • Badkamers :

  • Slaapkamers :

  • € 2.150,00

  • 79 m2

  • 3

  • 1

  • 2

  • Woningtype :

  • Interieur :

  • Beschikbaar vanaf :

  • Beschikbaar tot :

  • Huisgenoot :

  • Appartement

  • n/a

  • 01-12-2025

  • n/a

  • 0

Faciliteiten

  • Badkamer :

  • Toilet :

  • Keuken :

  • Woonkamer :

  • Internet beschikbaar :

  • Privé

  • Privé

  • Privé

  • Privé

  • Ja

  • Huisdieren :

  • Roken :

  • Parkeerplaats :

  • Fietsenstalling :

  • Verboden

  • Toegestaan

  • Niet beschikbaar

  • Niet beschikbaar

Locatie