
Kanaalstraat , 6541 XG Nijmegen
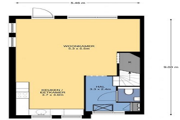
Via de hal met meterkast, toiletruimte en trapopgang betreed je de ruime woonkamer met een open keuken, voorzien van vaatwasser, oven, koelkast, gasfornuis en afzuigkap. Aan de achterzijde van de woonkamer heb je een rechtstreekse doorgang naar de tuin met berging en eigen achterom. Op de 1e verdieping bevinden zich 3 slaapkamers en de nette badkamer met douche, wastafel en een 2e toilet. Met een vaste trap bereik je de ruime zolderverdieping met de CV-, WTW installatie en de wasmachineaansluiting bevinden.
Huurprijs p.m. :
Oppervlakte :
Kamers :
Badkamers :
Slaapkamers :
€ 1.425,00
125 m2
4
1
3
Woningtype :
Interieur :
Beschikbaar vanaf :
Beschikbaar tot :
Huisgenoot :
Huurwoning
n/a
15-11-2025
n/a
0
Badkamer :
Toilet :
Keuken :
Woonkamer :
Internet beschikbaar :
Privé
Privé
Privé
Privé
Ja
Huisdieren :
Roken :
Parkeerplaats :
Fietsenstalling :
Toegestaan
Toegestaan
Niet beschikbaar
Niet beschikbaar