header-logo2.png Huurflits

Appartement Schiekade in Rotterdam

Schiekade , 3033 BP Rotterdam

€ 2.095,00 incl. G/W/E

Beschrijving

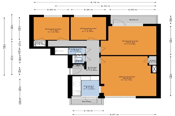
Indeling Je komt binnen in de hal die toegang geeft tot alle vertrekken. Vanuit hier loop je door naar de ruime leefruimte die meteen indruk maakt door het hoge plafond met witte balkconstructie en de vele ramen rondom, waardoor de woonkamer de hele dag baadt in het licht. Aan de voorzijde bevindt zich het comfortabele zitgedeelte met een royale diepe hoekbank in donkerblauw, een modern vloerkleed en een strak vormgegeven salontafel. De ruimte wordt verder aangekleed met designverlichting, planten en kunstwerken die een warme en eigentijdse sfeer creëren. De ingebouwde boekenkast over de hele muur geeft extra karakter en biedt volop opbergruimte. Het zit en kookgedeelte wordt gescheiden door de ruime eettafel met comfortabele stoelen en een lange bank. Aan de achterzijde ligt de moderne open keuken met strakke witte kasten en een donker werkblad. De keuken is voorzien van inbouwapparatuur zoals een inductiekookplaat, koelkast, vriezer, oven, vaatwasser en designafzuiging. Vanuit de keuken stap je zo het ruime balkon op, waar je de hele dag door zon hebt. De slaapkamer ligt aan de voorzijde en is ingericht met een tweepersoonsbed, een grote kledingkast met spiegeldeuren en een bureau. De moderne badkamer is uitgerust met een dubbele wastafel, grote spiegel met verlichting, een ruime douche en een toilet. Daarnaast is er ook nog een separaat toilet aanwezig, bereikbaar vanuit de hal. De woning beschikt over een afgesloten berging waar de wasmachine staat.

Verstuur een bericht

Door een bericht te sturen kom je in contact met de aanbieder of makelaar van de woning.

Bericht versturen

Woningdetails

  • Huurprijs p.m. :

  • Oppervlakte :

  • Kamers :

  • Badkamers :

  • Slaapkamers :

  • € 2.095,00

  • 136 m2

  • 2

  • 1

  • 1

  • Woningtype :

  • Interieur :

  • Beschikbaar vanaf :

  • Beschikbaar tot :

  • Huisgenoot :

  • Appartement

  • n/a

  • 04-01-2026

  • n/a

  • 0

Faciliteiten

  • Badkamer :

  • Toilet :

  • Keuken :

  • Woonkamer :

  • Internet beschikbaar :

  • Privé

  • Privé

  • Privé

  • Privé

  • Ja

  • Huisdieren :

  • Roken :

  • Parkeerplaats :

  • Fietsenstalling :

  • Toegestaan

  • Toegestaan

  • Niet beschikbaar

  • Niet beschikbaar

Locatie