Huurflits
Freddie Oversteegenstraat , 2033 MV Haarlem
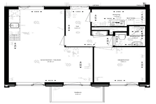
Het appartement heeft een oppervlakte van 53 vierkante meter en is gelegen op de eerste verdieping. Vanuit de hal zijn alle vertrekken van het appartement te bereiken. De woonkamer met open keuken heeft een oppervlakte van circa 28 vierkante meter. De keuken is gelegen aan de voorzijde van het appartement waar goed een eethoek gecreëerd kan worden. De keuken is voorzien van een inductiekookplaat, afzuigkap, combi oven en vaatwasser. Vanuit de woonkamer heb je toegang naar het terras. De slaapkamer heeft een oppervlakte van bijna 10 vierkante meter. De badkamer is uitgerust met een douche, wastafel met spiegel, toilet en handdoekradiator. Durmast heeft het appartement een inpandige berging met wasmachine aansluiting. De gehele woning wordt kaal en leeg opgeleverd. Tevens zit bij de woning een parkeerplaats. Niet mogelijk voor studenten om te huren
Huurprijs p.m. :
Oppervlakte :
Kamers :
Badkamers :
Slaapkamers :
€ 1.126,00
53 m2
2
1
1
Woningtype :
Interieur :
Beschikbaar vanaf :
Beschikbaar tot :
Huisgenoot :
Appartement
n/a
29-11-2025
n/a
0
Badkamer :
Toilet :
Keuken :
Woonkamer :
Internet beschikbaar :
Privé
Privé
Privé
Privé
Ja
Huisdieren :
Roken :
Parkeerplaats :
Fietsenstalling :
Toegestaan
Toegestaan
Niet beschikbaar
Niet beschikbaar