header-logo2.png Huurflits

Appartement Söderblomplaats in Rotterdam

Söderblomplaats , Rotterdam

€ 1.070,00 excl. G/W/E

Beschrijving

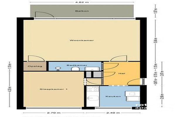
Indeling De begane grond beschikt over een gezamenlijke entree met bellentableau, postbussen, een zitplek en een informatiebord. Met de liften of trap bereik je de galerij op de eerste verdieping die leidt naar de entree van het appartement. Je komt binnen in een hal die toegang geeft tot alle vertrekken. Aan de achterzijde bevindt zich de ruime woonkamer met grote raampartijen die uitkijken op het groen. De ruimte is ingericht met een comfortabele zitbank, tv-meubel met televisie, bureau, een eettafel en een interne bergkast. Vanuit de woonkamer is er toegang tot het brede balkon dat is voorzien van een zitset. Aan de voorzijde ligt de keuken die is uitgerust met een koelkast, vriezer, wasmachine, inbouwafzuigkap, gaskookplaat, vaatwasser en praktische opbergruimtes. De slaapkamer bevindt zich eveneens aan de voorzijde en heeft een tweepersoonsbed en grote kledingkasten. De badkamer is modern afgewerkt en voorzien van een inloopdouche, handdoekradiator, wastafel met meubel en een hangend toilet. Daarnaast beschikt de woning over een externe berging.

Verstuur een bericht

Door een bericht te sturen kom je in contact met de aanbieder of makelaar van de woning.

Bericht versturen

Woningdetails

  • Huurprijs p.m. :

  • Oppervlakte :

  • Kamers :

  • Badkamers :

  • Slaapkamers :

  • € 1.070,00

  • 55 m2

  • 2

  • 1

  • 1

  • Woningtype :

  • Interieur :

  • Beschikbaar vanaf :

  • Beschikbaar tot :

  • Huisgenoot :

  • Appartement

  • n/a

  • 01-02-2026

  • n/a

  • 0

Faciliteiten

  • Badkamer :

  • Toilet :

  • Keuken :

  • Woonkamer :

  • Internet beschikbaar :

  • Privé

  • Privé

  • Privé

  • Privé

  • Ja

  • Huisdieren :

  • Roken :

  • Parkeerplaats :

  • Fietsenstalling :

  • Toegestaan

  • Toegestaan

  • Niet beschikbaar

  • Niet beschikbaar

Locatie