header-logo2.png Huurflits

Appartement Honingerdijk in Rotterdam

Honingerdijk , 3063 AM Rotterdam

€ 2.950,00 excl. G/W/E

Beschrijving

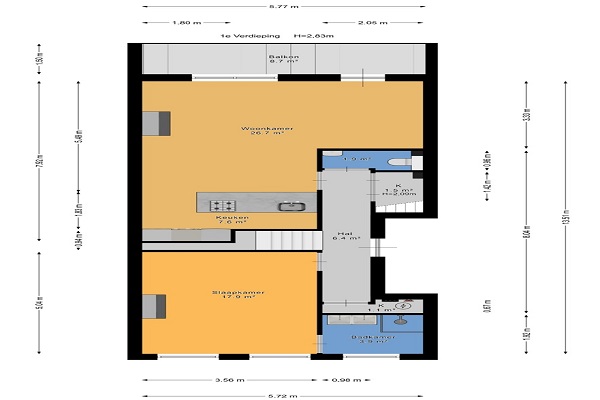
NIET VOOR STUDENTEN & NIET GESCHIKT VOOR MEER DAN TWEE WONINGDELERS! Indeling Opgang naar eerste verdieping. Entree woning in de hal. Op de eerste etage bevindt zich de woonkamer met openkeuken voorzien van alle denkbare moderne inbouwapparatuur, koelkast, vriezer, vaatwasser, inductiekookplaat, kokend water kraan van Quooker en een wijnkoeler. Via de woonkamer toegang tot het achterbalkon. Verder bevindt de master bedroom met eigen badkamer voorzien van inloopdouche met dubbele wastafel en spiegel zich aan de voorzijde van het appartement. In de hal separaat het toilet met fontein. Trap naar de tweede etage met overloop. Hier bevinden zich de laatste 2 slaapkamers. Tweede badkamer met inloopdouche, ligbad en dubbele wastafel. Ook hier separaat het toilet in de hal. Zie graag de plattegronden voor de afmetingen.

Verstuur een bericht

Door een bericht te sturen kom je in contact met de aanbieder of makelaar van de woning.

Bericht versturen

Woningdetails

  • Huurprijs p.m. :

  • Oppervlakte :

  • Kamers :

  • Badkamers :

  • Slaapkamers :

  • € 2.950,00

  • 106 m2

  • 4

  • 1

  • 3

  • Woningtype :

  • Interieur :

  • Beschikbaar vanaf :

  • Beschikbaar tot :

  • Huisgenoot :

  • Appartement

  • n/a

  • 12-11-2025

  • n/a

  • 0

Faciliteiten

  • Badkamer :

  • Toilet :

  • Keuken :

  • Woonkamer :

  • Internet beschikbaar :

  • Privé

  • Privé

  • Privé

  • Privé

  • Ja

  • Huisdieren :

  • Roken :

  • Parkeerplaats :

  • Fietsenstalling :

  • Toegestaan

  • Toegestaan

  • Niet beschikbaar

  • Niet beschikbaar

Locatie