header-logo2.png Huurflits

Appartement Apeldoornseweg in Arnhem

Apeldoornseweg , 6816 SN Arnhem

€ 966,00 excl. G/W/E

Beschrijving

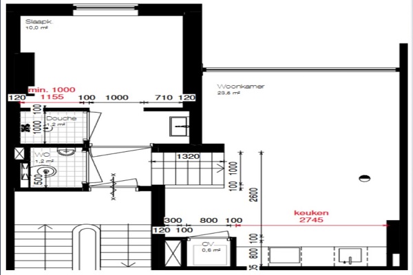
Indeling: Via de gemeenschappelijke entree en trapopgang bereik je het appartement. Deze heeft een speelse inrichting met een klein etage verschil tussen het woon en slaap gedeelte. Het appartement beschikt over een nette vloer en een functionele open keuken. Deze is ingericht met een kookplaat, koelkast en vaatwasser. De slaapkamer heeft een nette wastafel en geeft toegang tot de douche. Het zwevend toilet is separaat gelegen.

Verstuur een bericht

Door een bericht te sturen kom je in contact met de aanbieder of makelaar van de woning.

Bericht versturen

Woningdetails

  • Huurprijs p.m. :

  • Oppervlakte :

  • Kamers :

  • Badkamers :

  • Slaapkamers :

  • € 966,00

  • 38 m2

  • 2

  • 1

  • 1

  • Woningtype :

  • Interieur :

  • Beschikbaar vanaf :

  • Beschikbaar tot :

  • Huisgenoot :

  • Appartement

  • n/a

  • 01-11-2025

  • n/a

  • 0

Faciliteiten

  • Badkamer :

  • Toilet :

  • Keuken :

  • Woonkamer :

  • Internet beschikbaar :

  • Privé

  • Privé

  • Privé

  • Privé

  • Ja

  • Huisdieren :

  • Roken :

  • Parkeerplaats :

  • Fietsenstalling :

  • Verboden

  • Toegestaan

  • Niet beschikbaar

  • Niet beschikbaar

Locatie